Düz Flanş Teknik Çizim

Görseller arası geçiş için noktalara tıklayın

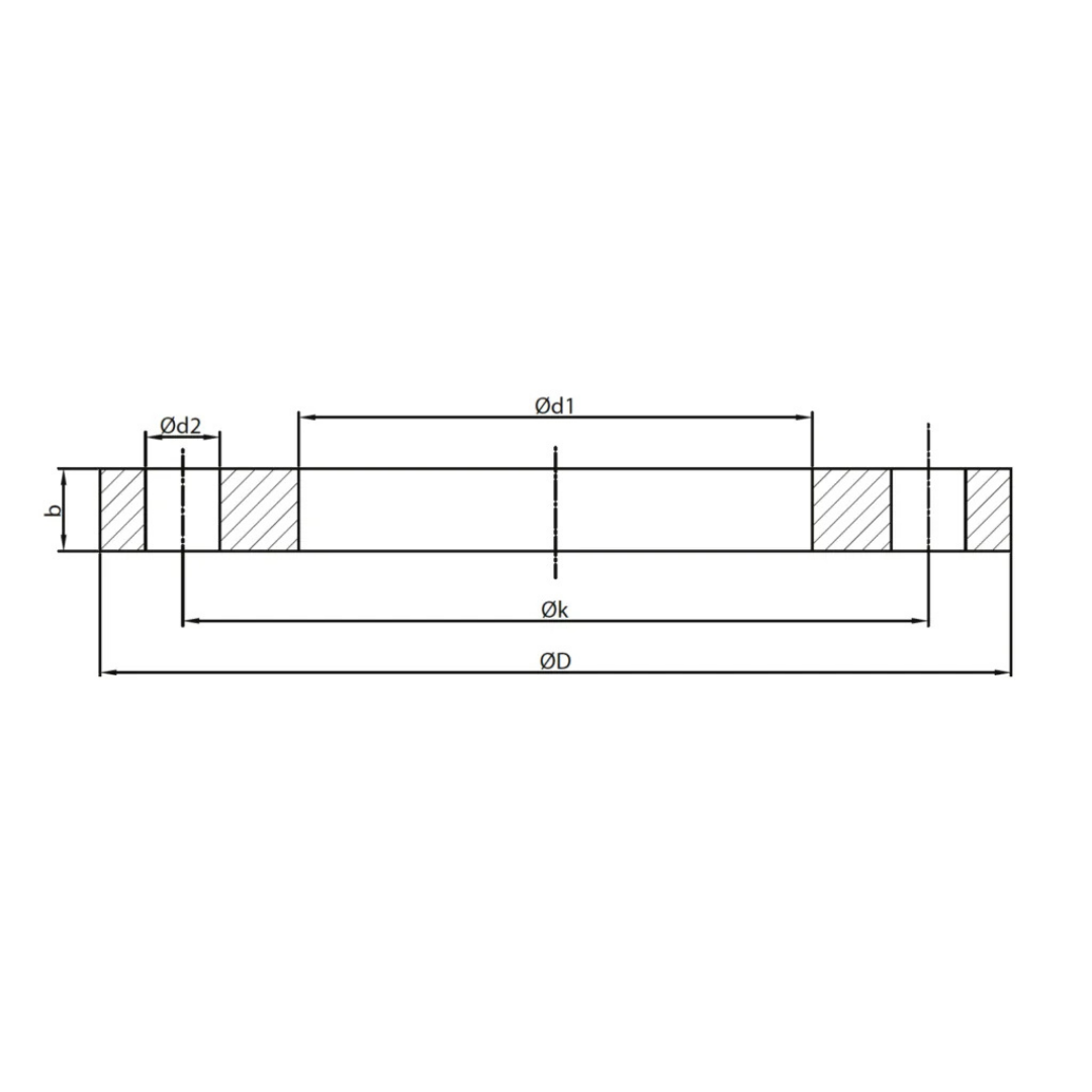
PE FLANŞ

PE flanş, polietilen boru sistemlerinde farklı hat elemanlarının birbirine bağlanmasını sağlayan, hafif, dayanıklı ve korozyona karşı dirençli bir flanş çeşididir. Özellikle PE borularla uyumlu yapısı sayesinde güvenli montaj imkânı sunar ve conta ile birlikte kullanıldığında sağlam bir sızdırmazlık elde edilir.

Teknik Veriler

  • Ölçü Aralığı: 25mm – 1000mm
  • Basınç Sınıfı: PN6 – PN100
  • Standartlar: TSE, Avrupa ve Amerikan Normları
TEKLİF ALIN